Amersfoort Vathorst de Laak Special Schoklandstraat
Amersfoort Vathorst Schoklandstraat 27
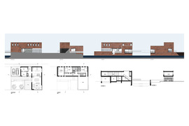
Amersfoort de Laak is de nieuwe grachtengordel van uitbreidingswijk Vathorst. Het riviertje de Laak vormt de noordelijke grens hiervan. Nieuwe watergangen verdelen dit plandeel in orthogonale eilanden. Onderschaatsbare bruggen verbinden de eilanden en zorgen voor de ontsluiting. Parkeren vindt zoveel mogelijk plaats in de bouwblokken. De hedendaagse woningen zijn pandsgewijs ontworpen met een rijke detaillering. Op bijzondere oriënterende plekken zijn speciale woningen gelegen. De woning aan de Schoklandkade is één van de specials.Het bijzondere van deze woning is dat deze binnen het plangebied in samenspraak met de bewoners ontworpen is. De zuidelijke kavel kenmerkt zich door de ligging aan 2 waterwegen. Het woon- werkprogramma is zo ontworpen dat het open woonprogramma een optimale dialoog aan kan gaan met de context . De heldere efficiënte structuur verbind het wonen met het werken en slapen op een natuurlijke en overzichtelijke manier.
Project:
Opdrachtgever:
Omschrijving:
Omvang:
Oplevering:
Ontwerp:
Amersfoort Vathorst Schoklandstraat 27
Heijmans Vastgoed
Latei Projectontwikkeling
Woonhuis special Schoklandstraat
232m2
2012
Ontworpen bij Inbo
Vul uw eigen inhoud in.
Vul uw eigen inhoud in.
Vul uw eigen inhoud in.
Vul uw eigen inhoud in.











